비드프로 고객 상담
전화 :
031 628 7891
팩스 :
031 628 7895
평일 9AM ~ 6PM 토/일/휴일 휴무
 
입찰정보 > 입찰공고 현황 > 물품
1. 공고일반 ※ 회원가입 후 시그니처 입찰시스템을 활용해보세요!
공고번호 R25BK01241412-001 공고일시 
공고명 고려대학교 장애인/일반 겸용통로 출입게이트 구매
공고기관 고려대학교 수요기관 고려대학교
공고담당자 이지혜(☎: 02-3290-1214)    
입찰방식 직접입찰 계약방법 일반경쟁
국제입찰구분    
 
2. 입찰일시
입찰개시일시 2026/01/05 09:00    
입찰(투찰)마감일시 2026/01/05 09:00 개찰(입찰)일시 2026/01/05 10:00
 
3. 입찰금액
기초금액
0 원
   
배정예산
48,434,100 원
   
추정가격
44,031,000 원
낙찰하한율
-
 
4. 입찰공고서 원문
 

작성일 : 2025.12 

 

 

 

 

 

고려대학교 장애인/일반 겸용통로 출입게이트 공고서 및 규격서 

 

 

 

 

 

 

 

1. 일반 사항 

 

가. 사업명: 장애인/일반 겸용통로 출입게이트 구매 

나. 사업개요 
- 장애인/일반 겸용통로 출입게이트 BSGATE_WGTBSR(Single: 1대, Dual: 1대) 

다. 납품기한: 2026년 02월 15일까지 

라. 입찰방식: 규격가격동시입찰(최저가입찰) 

마. 납품장소: 고려대학교 하나스퀘어 신규열람실 

바. 접수기간: 입찰 공고문 참조 

 

2. 입찰 방법 

 

가. 본 입찰은 총액입찰로 규격서에 명시한 구매 물품에 대한 총액을 투찰함 

나. 접수마감일시까지 고려대학교 구매입찰시스템(https://ten.korea.ac.kr)을 통해 참가신청 및 견적서 제출 

다. 현장입찰 당일 입찰이행보증보험증권(물품구매금액의 5/100) 및 관련 서류 제출 

라. 아래 참가 자격에 부합하는 업체만 입찰에 참여 

 

3. 참가 자격 

 

가. 국가를 당사자로 하는 계약에 관한 법률 시행령 제12조 및 동법 시행규칙 제14조규정에 의한 자격을 구비한 업체 

나. 국가를 당사자로 하는 계약에 관한 법률 시행령 제76조에 의한 부정당업자로 제재를 받지 않은 업체 

다. 입찰공고일 현재 부도, 파산, 영업정지, 휴업, 폐업, 법정관리, 인허가등록취소, 청산, 합병, 매각 등 정리 절차 중이거나 계획중인 사업자와 법원에 화의 또는 법정관리 중이거나 신청 중인 사업자는 입찰에 참가할 수 없음 

라. 최근 3년 이내 대학도서관 도서관시스템 연간 단일 납품(구축) 실적 4천만 원 이상인 업체(입찰 참가시 “실적증명원” or 계약서 사본 제출) 

마. 도서관 도서관리시스템(튜울립) 업체 연동 기술지원확약서 제출 업체(입찰 참가시 제출) 

바. 도서관 기존 출입관리 통합 통계 SW 운영 업체 연동 기술지원확약서 제출 업체(입찰 참가시 제출) 

사. 모든 S/W 및 H/W 설치 시 반드시 과학도서관 출입 게이트 관리부서 담당자의 승인 후 설치 진행하여야 함 

아. 고려대 전자입찰사이트(ten.korea.ac.kr)에 업체등록을 필한 자 

자. 사업내용에 제시된 사항을 모두 수용 가능하며, 공고규격의 동급 이상을 충족한 제품을 기한 내 납품할 수 있는 업체 

 

4. 우선협상대상자(낙찰자) 결정 및 계약 

 

가. 예정가격 이하에서 최저가격을 투찰한 자를 계약상대자로 결정하며, 낙찰이 될 수 있는 동일가격 입찰서 제출자가 2인 이상인 경우에는 동일가격 입찰자를 대상으로 추첨에 의하여 낙찰자를 결정한다. 

나. 낙찰자는 낙찰 통보일로부터 지체없이 계약을 체결하여야 하며, 계약 시 대학이 제시하는 구매 예정금액의 10/100을 계약이행보증보험증권으로 납부한다. 

다. 낙찰자는 실제 구매량(납품지시량)이 증가되거나 감소되어도 본 계약단가에 의하여 납품하고 정산하여야 한다. 

라. 낙찰자는 계약 후 납품 시 계약금액의 10/100에 해당하는 하자이행보증보험증권을 납부한다.  

 

5. 유의 사항 

 

가. 본 계약 이행에 따르는 채권 및 채무를 사전 협의 없이 제3자에게 양도하거나 위임, 하청, 공동 수급 할 수 없다.  

나. 규격 미달품을 납품하거나 비정품을 납품할 경우 계약의 일부 또는 전부를 해제 또는 해지할 수 있으며, 이로 인하여 공급받는 자가 손해를 입었을 경우 공급자는 이를 배상할 책임을 진다. 

다. 입찰참가자는 입찰 전에 입찰공고서, 규격서, 제품납품에 대한 일반사항 등 입찰에 필요한 모든 사항을 숙지하여야 하며, 숙지하지 못하여 발생하는 책임은 입찰참가자에게 있다. 

라. 제품 성능에 하자가 없어야 하며, 하자 발생 시 해결을 위한 소요 인력 및 자재는 전액 계약자가 부담한다. 

마. 제품 납품 시 규격서에 명시된 물품 사양을 검증할 수 있는 자료를 제출해야 한다. 

바. 공고문에 언급되지 않는 사항은 입찰공고일 현재 적용되는 국가계약관련법령 등 관련 규정에 의함 

 

6. 설치 및 기타 

 

가. 제품 설치에 필요한 인력 및 자재는 모두 계약자가 부담한다. 

나. 계약자는 구축에 적용된 공정 장비 및 설치 제품에 대한 교육, 매뉴얼, 기술자료를 제공한다. 

다. 기재된 항목 이외에 구축 시에 필요한 제반 사항은 모두 계약자가 부담한다. 

라. 작업 시 제반 사항을 준수하여야 하며, 부주의한 사고는 계약자가 책임진다. 

마. 기 설치된 각종 장비의 운용/유지보수 및 시설관리에 지장을 초래하는 일이 없어야 하며, 교체 및 재배치 등 기존 장비에 영향을 미치는 공사는 반드시 감독관 입회하에 시행하여야 한다. 

 

7. 하자 보증 

 

가. 하자 보증기간은 준공일로부터 1년 이상으로 한다. 

나. 계약자는 모든 장비에 대하여 품질이나 성능 및 운용에 대한 지속적인 보장을 하여야 하며 하자발생시 지체 없이 기기 및 부품의 무상 교체 및 수리 등을 이행하여야 한다. 

다. 하자 보증기간 중 하드웨어 및 소프트웨어 등의 결함사항이 발견되거나, 장애통보가 있을 경우에 계약자는 지체 없이 무상으로 완전하게 복구조치하여야 한다. 

 

 

8. 출입게이트 상세 규격서

구분 

주요 규격 및 사양 

수량 

출입 게이트 

 

2-1 

장애인/일반 겸용통로 출입게이트 BSGATE_WGTBSR(Single: 1대, Dual: 1대) 

  

 1. 제품 사양 

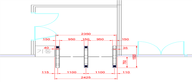
 - 치수: 150(W)이하 x 1,500(L) x 1200(H)mm 이상 

  - 전원: 220 ~ 230V. 50/60Hz. 

 - 재질: Steel 2T  

- 차단판 개폐방식: 폴리카보네이트 Wing Flap 방식 

 - Motor: AC 서보 Motor / 정밀제어 드라이브 적용 

 - 통로 폭: 950mm 

             (전체통로 일반 통로/장애인 통로 겸용 구성) 

 - 차단판: 폴리카보네이트(PC) 두께 15mm 

 - 화물용 게이트: 강화유리 수동 스윙도어(1000mm, 사용자 미인증)/유리 가이드 펜스 

 - 출입 관리 산업용 내장 미니 PC 및 출입 관리 프로그램 운영 

 

 2. 제품 기능 

  - 고려대학교 도서관 LAS 이용자 DB 연동으로 출입자 통제 

  - 고려대학교 좌석배정시스템 연동 지원 

  - 고려대학교 출입 인증방식 지원을 통한 편리한 신분증 인증  

  - 이용자 출입의 엄격한 통제를 위하여 1회 인증, 1회 출입 개폐방식으로 작동되어야 함 

  - 구동 모터는 AC 서보 Motor / 정밀제어 드라이브 적용하고, 내구성이 강력한 최소 3년 또는 500만회 이상 보장 할 수 있는 AC 서보 Motor / 정밀드라이브 적용하여야 함 

  - 장비 자체 보드에서 관리자에 의한 통행 방향 설정이 가능하여야 함  

  - 원활한 통행을 위해 방향 표시 기능 제공  

  - 화재, 재해 등의 비상 상황으로 인하여 정전이 되었을 경우 차단판을 수동으로 열 수 있어야 함 

  - 게이트 내부에 12조 이상의 센서를 내장하여 통행자 또는 물체 감지 시 개방을 유지하며, 차단판이 닫히는 과정에서의 감지 시에는 자동으로 재개방이 가능한 안전 기능 제공 

  - 출입 인가자의 반대 방향으로 역순 출입 시도 시 센서에 의해 자동 차단할 수 있는 역방향 진입 방지 기능 제공 

  - 이용자 안전을 위하여 모서리 부분은 라운드 처리하여 부딪히더라도 부상을 최소화할 수 있도록 설계 

  - 이용자 안전을 위하여 출입 인증 시 출입 게이트 날개(Wing) 오픈 속도를 조절할 수 있어야 함 

  - 도서관 운영규칙에 맞는 환경설정 및 통계를 위한 관리자 프로그램 제공 

  - 도서관 운영규칙에 따라 양방향 인증 기능 지원 

  - 게이트 설치 시 좌.우측 날개(Wing) 사이가 50mm 미만으로 설치되어야 함 

  - 학생증 인증 누적 카운트 기능 지원하여야 함 

  - 게이트 오픈 명령을 접점(스위치)이 아닌 고려대학교에서 인증한 통신방식(PC에서 오픈명령)으로 게이트를 오픈하여야 함 

  - 게이트 인증 시, 날개(Wing)에 파란색,녹색,파란색 3가지 색상으로 인증 표시를 지원하여야 함 

*하나스퀘어 신규열람실(양방향)(Single: 1대, Dual: 1대 / 전체 2통로) 

출입 관리시스템 

2-2 

게이트 콘트롤러 

   - PCB BOARD, 출입 통제 신호 전송 

   - 게이트 동작 제어 

2대 

2-3 

리더기 

  - 고려대학교 지정 통합리더기(매립)  

4대 

2-4 

출입 관리 프로그램 

 1. 운영 및 모니터링 프로그램 

   - 출입 게이트 제어 및 모니터링 

   - 이용자 정보 연동을 통한 이용자 출입통제 

   - 원격으로 출입 게이트 도어 개폐 지원 

   - 관리자에 의한 일괄 개방 및 복구 제어 기능 

   - 교내 PC 어디든 출입 게이트를 오픈 할 수 있게 출입 관제 소프트웨어를 설치하여야 함(고려대학교 기존 출입 게이트 소프트웨어 포함) 

 2. 웹/앱기반 출입 관리 프로그램  

   - 기존 출입 통계와 통합통계 구성하여야 함 

   - 다양한 이용 통계 조회(개인별, 장비별, 시간별) 

   - 도서관 장비 운영 규칙에 맞는 환경설정 기능 

   - 전체 출입구를 개별로 관리자가 통합관리 할 수 있는 관리자용 Native App 제공 (Play Store(안드로이드) 및 App Store(iOS)) 

1식 

2-5 

멀티포트 

 멀티 시리얼 카드 

   - 8 포트 시리얼 통신 카드 

   - RS232 시리얼 인터페이스 제공 

   - 최대 921.6Kbps 통신 속도 지원 

   - DB9 커넥터 9번 핀을 통하여 +5V 또는 +12V 전원 공급 

   - ±15KV 충격 전기 신호로부터 자체 보호 기능 내장 

1대 

출입 관리시스템 

2-6 

출입 관리 운영 PC 

출입관리 산업용 내장 미니 PC 

   - CPU: Intel Celeron J3455 

   - RAM: 8GB 이상 

   - SSD: 128기가 

   - Fanless 

   - OS: Windows 11 IoT Enterprise LTSC entry 

   - 모니터 포함(7인치 이상) 

   - 산업용 내장 PC 

1식 

2-7 

설치공사 

  - 기존 출입 게이트 철거 및 출입 게이트용 케이블 설치, 마감 처리 포함한 출입 관리시스템 설치공사 관련 일체(기존 전원 및 LAN 사용) 

1식 

출입 관리시스템  

2-8 

기 운영 시스템 연동 

   

   - 고려대학교 도서 관리 프로그램(LAS) 이용자 정보와 연동하여 이용자 신분 인증 

 

1식 

2-9 

기 운영 중인 출입 관리시스템과 통합통계 구성 

  - 고려대학교에 현재 운영 중인 출입 관리 통계와 연동하여 통합 통계를 구축하여야 함 

1식 

2-10 

대리석/타일 시공 설치공사 

 - 출입 게이트 설치 시 바닥 배관, 배선 및 대리석, 타일 시공 공사(고려대학교 지정 대리석 및 타일) 

1식 

 

 

9. 구성도 

그림입니다. 

※ 문의사항 

 

가. 입찰 및 계약 관련: 관리팀 이지혜(ljh831@korea.ac.kr / 3290-1214) 

나. 물품 세부사항 관련: 학술정보큐레이션팀 김유림(yurimm@korea.ac.kr / 02-3290-4224)