비드프로 고객 상담
전화 :
031 628 7891
팩스 :
031 628 7895
평일 9AM ~ 6PM 토/일/휴일 휴무
 
입찰정보 > 입찰공고 현황 > 물품
1. 공고일반 ※ 회원가입 후 시그니처 입찰시스템을 활용해보세요!
공고번호 R25BK01115443-000 공고일시 
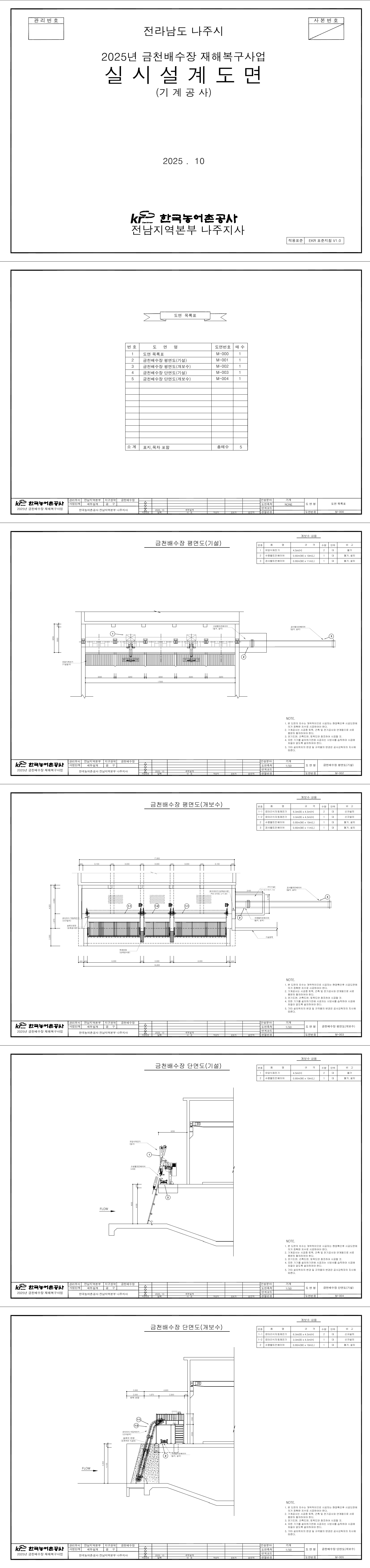
공고명 2025년 금천배수장 재해복구사업 지급자재(제진기) 제조·구매 설치
공고기관 한국농어촌공사 전남지역본부 수요기관 한국농어촌공사 전남지역본부
공고담당자 이창우(☎: 062-958-2310)    
입찰방식 전자시담 계약방법 수의계약
국제입찰구분    
 
2. 입찰일시
입찰개시일시 2025/10/27 14:30    
입찰(투찰)마감일시 2025/10/27 17:00 개찰(입찰)일시 2025/10/27 18:00
 
3. 입찰금액
기초금액
0 원
   
배정예산
585,027,000 원
   
추정가격
531,842,727 원
낙찰하한율
-
 
4. 입찰공고서 원문